Q641F氣動法蘭球閥
- 銷售:021-32051999
- 銷售:021-32050777
- 傳真:021-66099555
詳情介紹
- 產品介紹
- 服務承諾
- 訂貨流程
Q641F氣動法蘭球閥是一種轉角為90°的旋轉類閥門,密封性能優良,流量系數大,流阻系數小,結構簡單,使用壽命長,便于維修。配用的執行機構是引進國外新型技術生產的Bray系列氣缸式執行機構,球閥分單作用和雙作用兩種型號。產品廣泛應用于化工、石油、輕紡、電力、食品制藥、制冷、造紙行業的系統控制。
氣動法蘭球閥性能參數
公稱通徑DN(mm) | DN15~DN400 |
公稱壓力 | 1.6、4.0、6.4MPa、ANSI150、300(Lb)、JIS10、20K |
適用介質 | 水、石油、硝酸類、醋酸類、粘性流體、漿料、強氧化性介質等 |
介質溫度 | -40~+180℃ -40~+350℃ |
泄漏量 | 0 符合ANSIB16.104 5級標準 |
球體轉角 | 90° |
閥體材制質 | A105、F304、F316、WCB、FZG1Cr18Ni9Ti、ZG1Cr18Ni12Mo2Ti、CF8、CF8M、CF3M |
閥座材料 | 聚四氟乙烯(常溫)、特制PPL(高溫) |
防爆級組 | dⅡBT4(d2c4)(可供普通型、防爆型二種規格) |
電磁閥電源 | 220VAC、24VDC |
氣源壓力 MPa | 0.4~0.7MPa |
固有可調比 R | 100:1 |
氣動法蘭球閥主要零件材料
零件名稱 | 零件材料 | |||
閥體、閥蓋 | WCB | 304(CF8) | 316(CF8M) | 316L(CF3M) |
球體 | 2Cr13+氮化處理 | 304 | 316 | 316L |
閥桿 | 2Cr13 | 304 | 316 | 316L |
閥座密封圈 | PTFE、碳素纖維+PTFE、對位聚苯 | |||
填料 | V型PTFE、柔性石墨 | |||
注:球體可根據用要求選用不同材質:A105、304、316、316L、LF2、F51、42CrMo、Monel、17-4PH、CF8、CF8M等。
氣動法蘭球閥流量特性Kv值
公稱通徑 | 不同開度角下的Kv值 | ||||||||
10° | 20° | 30° | 40° | 50° | 60° | 70° | 80° | 90° | |
50 | 2 | 4 | 9 | 17 | 32 | 60 | 97 | 151 | 215 |
80 | 6 | 11 | 22 | 44 | 83 | 155 | 250 | 389 | 550 |
100 | 9 | 18 | 34 | 71 | 133 | 248 | 398 | 620 | 890 |
150 | 20 | 40 | 80 | 160 | 300 | 560 | 900 | 1400 | 2000 |
200 | 36 | 72 | 143 | 286 | 737 | 1002 | 1611 | 2506 | 3580 |
250 | 57 | 113 | 226 | 453 | 848 | 1582 | 2253 | 3955 | 5650 |
300 | 81 | 163 | 325 | 651 | 1220 | 2278 | 3661 | 5695 | 8100 |
350 | 110 | 221 | 443 | 885 | 1750 | 3541 | 5311 | 7967 | 10950 |
400 | 150 | 303 | 605 | 1113 | 2424 | 4850 | 7275 | 10910 | 15300 |

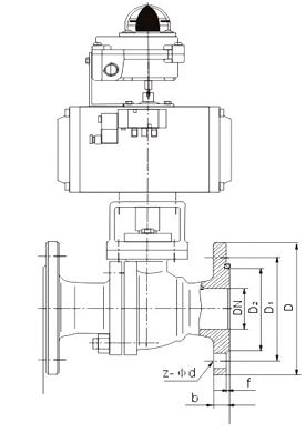
氣動法蘭球閥尺寸:
| 公稱通徑 DN(mm) | 尺 寸(mm) | |||||||||||||||
| 1.6MPa | 2.5MPa | 4.0MPa | 6.4MPa | |||||||||||||
| L | D | D1 | Z-фD | L | D | D1 | Z-фD | L | D | D1 | Z-фD | L | D | D1 | Z-фD | |
| 15 | 130 | 95 | 65 | 4-14 | 130 | 95 | 65 | 4-14 | 130 | 130 | 65 | 4-14 | 140 | 105 | 75 | 4-14 |
| 20 | 140 | 105 | 75 | 4-14 | 140 | 105 | 75 | 4-14 | 140 | 150 | 75 | 4-14 | 152 | 125 | 90 | 4-18 |
| 25 | 150 | 115 | 85 | 4-14 | 150 | 115 | 85 | 4-14 | 150 | 160 | 85 | 4-14 | 180 | 135 | 100 | 4-18 |
| 32 | 165 | 135 | 100 | 4-18 | 165 | 135 | 100 | 4-18 | 180 | 180 | 100 | 4-18 | 200 | 150 | 110 | 4-23 |
| 40 | 180 | 145 | 110 | 4-18 | 180 | 145 | 110 | 4-18 | 200 | 200 | 110 | 4-18 | 220 | 165 | 125 | 4-23 |
| 50 | 200 | 160 | 125 | 4-18 | 200 | 160 | 125 | 4-18 | 220 | 230 | 125 | 4-18 | 250 | 175 | 135 | 4-23 |
| 65 | 220 | 180 | 145 | 4-18 | 220 | 180 | 145 | 8-18 | 250 | 290 | 145 | 8-18 | 280 | 200 | 160 | 8-23 |
| 80 | 250 | 195 | 160 | 8-18 | 250 | 195 | 160 | 8-18 | 280 | 310 | 160 | 8-18 | 320 | 210 | 170 | 8-23 |
| 100 | 280 | 215 | 180 | 8-18 | 280 | 230 | 190 | 8-23 | 320 | 350 | 190 | 8-23 | 360 | 250 | 200 | 8-25 |
| 125 | 320 | 245 | 210 | 8-18 | 320 | 270 | 220 | 8-25 | 360 | 270 | 220 | 8-25 | 381 | 295 | 240 | 8-30 |
| 150 | 360 | 280 | 240 | 8-23 | 360 | 300 | 250 | 8-25 | 400 | 300 | 250 | 8-25 | 403 | 340 | 280 | 8-34 |
| 200 | 400 | 335 | 295 | 12-23 | 400 | 360 | 310 | 12-25 | 502 | 375 | 320 | 12-30 | ||||
良好的品質、優良的服務 奇高為你創造更多價值!
“奇高閥門”的期望,不斷提升服務質量,精益求精,“真誠的服務”是“奇高”永恒的主題。“奇高”嚴格按照IS09001-2000 質量體系認證要求,質量嚴格把關, 責任到人,確保生產、銷售、服務的健康運行。加強與用戶溝通,竭誠為廣大客戶提供優良產品,貼心服務。特此我廠做出以下承諾:
產品標準:
產品嚴格按照中國GB、HG 標準和美國API等標準設計、制造、驗收。密封面硬度達到國家規定要求,寬度超過國家標準。
售前服務:
產品介紹,技術交流,非標產品設計,疑難解答。
售中服務:
守信合同,及時供貨,隨時保持與客戶聯系。 對特殊或復制的產品,我廠安排技術人員對用戶進行產品使用、故障排除
售后服務:
1、“奇高”牌產品品質期為自出廠起12個月,實行“三包”服務(包退、包換、保修)。
2、產品在使用中我廠定期組織技術、質檢人員進行訪問,征詢用戶對產品質量、 使用狀況、改進意見等方面的反饋, 以便進一步提高產品質量。
3、對用戶投訴質量問題,快速作出反應,售后服務人員在24-36小時(省外48小時)趕赴現場。
4、對售后服務,要求用戶填寫服務后的質量反饋信息表,并作出鑒定意見,以便提高奇高的服務質量。
1、客戶如對產品有特殊要求,須在訂貨合同中提供以下說明:
a、結構長度;
b、連接形式;
c、公稱直徑、全通徑、縮徑、管道尺寸;
d、運行介質及溫度、壓力范圍;
e、試驗、檢驗標準及其他要求
2、本廠可根據客戶特定要求配置各類驅動裝置。
3、如由客戶提供確定的閥門類型和型號時,客戶應正確說明其型號的含義和要求,在供需雙方理解一致的條件下簽訂合同。
4、期貨、訂貨的客戶請先來電函詳細告訴所需的閥門型號、規格、數量以及交貨時間、地點,并按總的30%預定金或全額貨款及時匯入我廠帳戶,其余貨款待發貨前匯入,以便及時安排發貨。
訂單流程:
1、客戶采購清單傳真至021-33872143,或來電咨詢 021-33872141
2、收到客戶采購清單,為客戶提供閥門型號選型與報價(價格清單)。
3、具體商定:交貨期、特殊要求等事宜。
訂貨須知:
1、客戶如對產品有特殊要求,須在訂貨合同中提供以下說明:
|
|||||
|
|||||
2、本廠可根據客戶特定要求配置各類驅動裝置。
|
|||||
3、如由客戶提供確定的閥門類型和型號時,客戶應正確說明其型號的含義和要求,在供需雙方理解一致的條件下簽訂合同。
|
|||||
4、期貨、訂貨的客戶請先來電函詳細告訴所需的閥門型號、規格、數量以及交貨時間、地點,并按總的30%預定金或全額貨款及時匯入我廠賬戶, 其余貨款待發貨前匯入,以便及時安排發貨。
|
售中服務:
守信合同,及時供貨,隨時保持與客戶聯系。
對特殊或復制的產品,我廠安排技術人員對用戶進行產品使用、故障排除
售后服務:
1、“奇高”產品品質期為自出廠起12個月,實行“三包”服務(包退、包換、保修)。
2、產品在使用中我廠定期組織技術、質檢人員進行訪問,征詢用戶對產品質量、使用狀況、改進意見等方面的反饋,
以便進一步提高產品質量。
3、對用戶投訴質量問題,快速作出反應,售后服務人員在24-36小時(省外48小時)趕赴現場。
4、對售后服務,要求用戶填寫服務后的質量反饋信息表,并作出鑒定意見,以便提高“奇高”的服務質量。
聲明 |
|