GJ641X氣動管夾閥
- 銷售:021-32051999
- 銷售:021-32050777
- 傳真:021-66099555
詳情介紹
- 產品介紹
- 服務承諾
- 訂貨流程
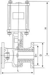
GJ641X氣動管夾閥由氣動裝置,左右閥體,橡膠管套、大小閥桿、上下閘板、導柱等零件組成。當順轉手輪時,使大小閥桿同時帶動上下閘板,壓縮管套,進行關閉,反轉即行開啟,這樣閘板在導柱之間上下往復完成閥門開閉工作。另外,因橡膠管套承力,因此在開關時,操作人員旋轉手輪時只要感到適量抵觸,均己達到開閉點,切勿盡力或多人輔助,禁用其他工具開閉。
主要零件材質
名稱 | 材料 |
閥體 | 鋁合金、鑄鐵 |
套管 | 橡膠 |
閥桿 | 鑄銅、碳鋼 |
壓桿 | 球墨鑄鐵 |
電動頭 | 組合件 |
托架 | 球墨鑄鐵 |

主要外形連接尺寸
公稱通徑 (DN) | 公稱壓力 (MPa) | 工作壓力 (MPa) | L | L1 | D | D1 | Z-Φ | H | A | 重量 (kg) |
25 | 0.6 | 0.6 | 160 | 124 | 115 | 85 | 4-14 | |||
32 | 165 | 145 | 140 | 100 | 4-18 | |||||
40 | 190 | 157 | 150 | 110 | 4-18 | |||||
50 | 210 | 160 | 160 | 125 | 4-18 | |||||
65 | 250 | 199 | 180 | 145 | 4-18 | |||||
80 | 300 | 222 | 195 | 160 | 4-18 | |||||
100 | 350 | 250 | 215 | 180 | 8-18 | |||||
125 | 430 | 318 | 245 | 210 | 8-18 | |||||
150 | 500 | 350 | 280 | 240 | 8-23 | 1000 | 265 | |||
200 | 0.4 | 0.4 | 650 | 446 | 335 | 295 | 8-23 | 1174 | 330 | |
250 | 800 | 516 | 395 | 350 | 12-23 | |||||
300 | 950 | 562 | 445 | 400 | 12-23 | |||||
采用標準設計與制造:Q/JBGN02 結構長度:Q/JBGN02 法蘭連接尺寸:JB78(PN1.0MPa) | ||||||||||
良好的品質、優良的服務 奇高為你創造更多價值!
“奇高閥門”的期望,不斷提升服務質量,精益求精,“真誠的服務”是“奇高”永恒的主題。“奇高”嚴格按照IS09001-2000 質量體系認證要求,質量嚴格把關, 責任到人,確保生產、銷售、服務的健康運行。加強與用戶溝通,竭誠為廣大客戶提供優良產品,貼心服務。特此我廠做出以下承諾:
產品標準:
產品嚴格按照中國GB、HG 標準和美國API等標準設計、制造、驗收。密封面硬度達到國家規定要求,寬度超過國家標準。
售前服務:
產品介紹,技術交流,非標產品設計,疑難解答。
售中服務:
守信合同,及時供貨,隨時保持與客戶聯系。 對特殊或復制的產品,我廠安排技術人員對用戶進行產品使用、故障排除
售后服務:
1、“奇高”牌產品品質期為自出廠起12個月,實行“三包”服務(包退、包換、保修)。
2、產品在使用中我廠定期組織技術、質檢人員進行訪問,征詢用戶對產品質量、 使用狀況、改進意見等方面的反饋, 以便進一步提高產品質量。
3、對用戶投訴質量問題,快速作出反應,售后服務人員在24-36小時(省外48小時)趕赴現場。
4、對售后服務,要求用戶填寫服務后的質量反饋信息表,并作出鑒定意見,以便提高奇高的服務質量。
1、客戶如對產品有特殊要求,須在訂貨合同中提供以下說明:
a、結構長度;
b、連接形式;
c、公稱直徑、全通徑、縮徑、管道尺寸;
d、運行介質及溫度、壓力范圍;
e、試驗、檢驗標準及其他要求
2、本廠可根據客戶特定要求配置各類驅動裝置。
3、如由客戶提供確定的閥門類型和型號時,客戶應正確說明其型號的含義和要求,在供需雙方理解一致的條件下簽訂合同。
4、期貨、訂貨的客戶請先來電函詳細告訴所需的閥門型號、規格、數量以及交貨時間、地點,并按總的30%預定金或全額貨款及時匯入我廠帳戶,其余貨款待發貨前匯入,以便及時安排發貨。
訂單流程:
1、客戶采購清單傳真至021-33872143,或來電咨詢 021-33872141
2、收到客戶采購清單,為客戶提供閥門型號選型與報價(價格清單)。
3、具體商定:交貨期、特殊要求等事宜。
訂貨須知:
1、客戶如對產品有特殊要求,須在訂貨合同中提供以下說明:
|
|||||
|
|||||
2、本廠可根據客戶特定要求配置各類驅動裝置。
|
|||||
3、如由客戶提供確定的閥門類型和型號時,客戶應正確說明其型號的含義和要求,在供需雙方理解一致的條件下簽訂合同。
|
|||||
4、期貨、訂貨的客戶請先來電函詳細告訴所需的閥門型號、規格、數量以及交貨時間、地點,并按總的30%預定金或全額貨款及時匯入我廠賬戶, 其余貨款待發貨前匯入,以便及時安排發貨。
|
售中服務:
守信合同,及時供貨,隨時保持與客戶聯系。
對特殊或復制的產品,我廠安排技術人員對用戶進行產品使用、故障排除
售后服務:
1、“奇高”產品品質期為自出廠起12個月,實行“三包”服務(包退、包換、保修)。
2、產品在使用中我廠定期組織技術、質檢人員進行訪問,征詢用戶對產品質量、使用狀況、改進意見等方面的反饋,
以便進一步提高產品質量。
3、對用戶投訴質量問題,快速作出反應,售后服務人員在24-36小時(省外48小時)趕赴現場。
4、對售后服務,要求用戶填寫服務后的質量反饋信息表,并作出鑒定意見,以便提高“奇高”的服務質量。
聲明 |
|